The Emory Plan
Ready to build
Daleville VA 24083
Home by Stateson Homes
at Millstone

Last updated 2 days ago
The Price Range displayed reflects the base price of the homes built in this community.
You get to select from the many different types of homes built by this Builder and personalize your New Home with options and upgrades.
3 BR
2 BA
2 GR
1,526 SQ FT

The Emory 1/24
Overview
1 Story
Primary Bed Downstairs
Single Family
The Emory Plan Info
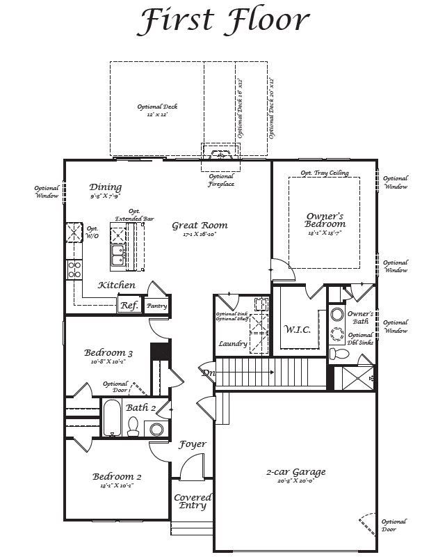
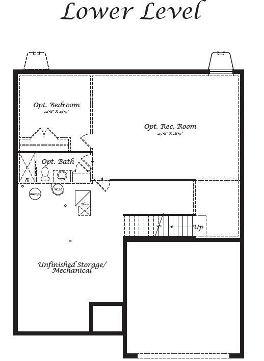
The Emory balances your active lifestyle with the comfort and convenience of main level living. This home features a main-level Owner’s Suite, two additional bedrooms, two full baths, and a two-car garage. Here you'll enjoy an open layout, spacious kitchen and family room, and extra emphasis on the comforts of the Owner's Suite with a large walk-in closet, and optional tray ceiling. This design has been thoughtfully implemented for luxury and practicality. There is an abundance of additional space, with an optional lower level offered that can include a recreation room, fourth bedroom, third bathroom, and a sizeable storage area. Located in Millstone, a scenic, traditional neighborhood in Daleville, VA, and crafted with timeless strength inspired by the historic Old Mill at Tinker Creek, where over 100 year old millstones still stand as symbols of enduring resilience. Just 1 mile from the Daleville Town Center, minutes from Botetourt Sports Complex, historic Fincastle, and Roanoke— here, you'll enjoy peaceful views and natural beauty while staying connected. The Emory by Stateson Homes—where peaceful living meets everyday convenience you deserve.
Floor plan center
View floor plan details for this property.
- Floor Plans
- Exterior Images
- Interior Images
- Other Media
Explore custom options for this floor plan.
- Choose Option
- Include Features
Neighborhood
Community location
Dominion Ave <br/> Daleville, VA 24083
129 Meriwether St <br/> Daleville, VA 24083
888-986-4422
Schools near Millstone
- Botetourt County Public Schools
Actual schools may vary. Contact the builder for more information.
Amenities
Home details
Ready to build
Build the home of your dreams with the The Emory plan by selecting your favorite options. For the best selection, pick your lot in Millstone today!
Community & neighborhood
Local points of interest
- Restaurants
- Botetourt Farmers Market
Social activities
- Daleville Town Center
Health and fitness
- Daleville YMCA
- Botetourt Sports Complex
At Stateson Homes, we are taking NEW to a whole other level. After ten years of turning dreams into homes, we are ready to kick off ten more years in a big way. 2022 is welcoming not one, but two new communities to our roster. Westhill, a brand-new community that has been reshaped and reimagined into something Blacksburg has never seen before. And Hills Quarter in Irvington, VA where signature Stateson style is coming home to a laid-back river life in Virginia’s Northern Neck. Get ready for what’s next.
Take the next steps toward your new home
The Emory Plan by Stateson Homes
saved to favorites!
To see all the homes you’ve saved, visit the My Favorites section of your account.
Discover More Great Communities
Select additional listings for more information
We're preparing your brochure
You're now connected with Stateson Homes. We'll send you more info soon.
The brochure will download automatically when ready.
Brochure downloaded successfully
Your brochure has been saved. You're now connected with Stateson Homes, and we've emailed you a copy for your convenience.
The brochure will download automatically when ready.
Way to Go!
You’re connected with Stateson Homes.
The best way to find out more is to visit the community yourself!