The Hickory Plan
Ready to build
East Lansing MI 48823
Home by Mayberry Homes
at Meadow Ridge

The Price Range displayed reflects the base price of the homes built in this community.
You get to select from the many different types of homes built by this Builder and personalize your New Home with options and upgrades.
3 BR
2.5 BA
2 GR
1,500 SQ FT

The Hickory 1/21
Overview
1 Half Bathroom
1500 Sq Ft
2 Bathrooms
2 Car Garage
2 Stories
3 Bedrooms
Basement
Dining Room
Loft
Porch
Primary Bed Upstairs
Single Family
Walk-In Closets
The Hickory Plan Info
Welcome to the Hickory, a wonderful sanctuary brought to life by Mayberry Homes. Imagine your dream home in this spacious and cozy atmosphere! With a generous 1,500 sq. ft. of space spread across two stories, it’s got everything you need.
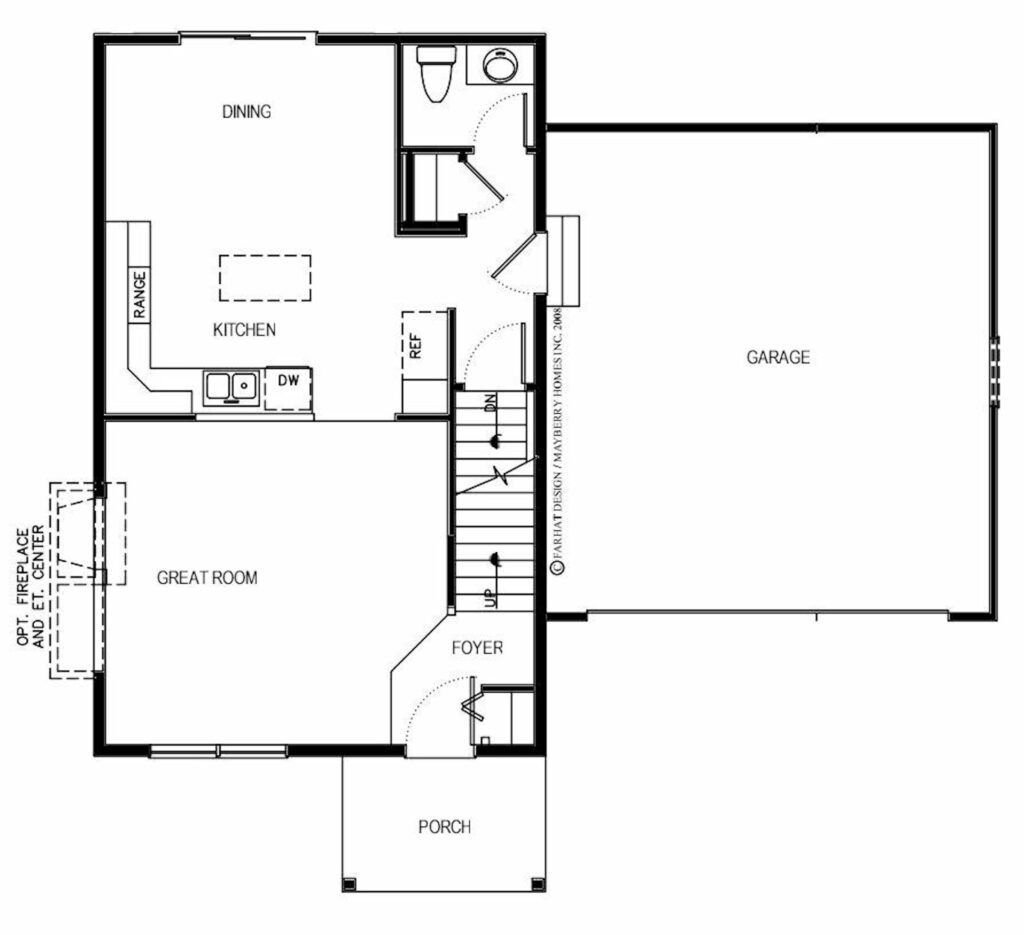
When you step inside, you’ll find a fantastic first-floor Great Room that flows seamlessly into an oversized kitchen and dining area. It’s the ideal spot to invite your friends over for a delightful dinner and create lasting memories.
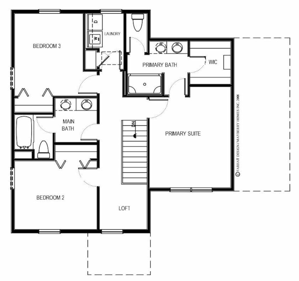
As you head upstairs, get ready to be amazed by the fabulous primary suite. Complete with a large walk-in closet and a luxurious master bath, it’s your personal oasis within the home. Plus, there are two additional bedrooms, another full bath, a roomy second-floor laundry area, and a convenient computer loft to suit all your needs.
And wait, there’s more! This home comes with a full, insulated basement, offering you even more space to play with and make your own. Not to mention the two-car attached garage, which makes life even easier.
So, if you’re looking for the perfect place to call home, the Hickory has got you covered. Let your imagination run wild and turn this space into your own haven!
Floor plans and photos shown may include base features along with additional options and upgrades.
Floor plan center
View floor plan details for this property.
- Floor Plans
- Exterior Images
- Interior Images
- Other Media
Explore custom options for this floor plan.
- Choose Option
- Include Features
Neighborhood
Sales office location
Kahres Road
Holt, MI 48842
1650 Kendale Blvd Suite 200
East Lansing, MI 48823
888-474-1829
Holt Rd. between Grovenburg Rd. and Onondaga Road, south on Kahres Rd. to Meadow Ridge. Holt Road (east of Grovenburg Rd and west of Eifert Road). South on Kahres Road. Meadow Ridge will be on the left.
Schools near Meadow Ridge
- Holt Public Schools
Actual schools may vary. Contact the builder for more information.
Amenities
Home details
Green program
ENERGY STAR Certified
Ready to build
Build the home of your dreams with the The Hickory plan by selecting your favorite options. For the best selection, pick your lot in Meadow Ridge today!
Community & neighborhood
Community services & perks
- HOA fees: Unknown, please contact the builder
"Mayberry" calls to mind visions of a simpler way of life.
It epitomizes an unhurried pace, with time to enjoy everything that's around you.
A place where you can savor the finer things in life, and leave the stresses of the everyday world far behind. A home where an unforced, casual sense of elegance prevails.
That warm and welcoming image of home is the inspiration behind Mayberry Homes. Founded by Karen J. and Robert K. Schroeder, the company offers new home buyers a unique blend of old-world values and cutting-edge technologies.
Mission Statement
Mayberry Homes is a family-oriented team passionately committed to creating innovative homes and communities.
With an emphasis on customer service and satisfaction, Mayberry Homes is dedicated to making the home buying experience a rewarding one. That's just part of what makes the company different, and better than the rest. As a local home builder, they pride themselves on being "good neighbors," and giving back to the community.
For a home of quality and value you'll appreciate for years to come, look for our name.
Mayberry Homes...building you the perfect place to call home.
TrustBuilder reviews
Take the next steps toward your new home
The Hickory Plan by Mayberry Homes
saved to favorites!
To see all the homes you’ve saved, visit the My Favorites section of your account.
Discover More Great Communities
Select additional listings for more information
We're preparing your brochure
You're now connected with Mayberry Homes. We'll send you more info soon.
The brochure will download automatically when ready.
Brochure downloaded successfully
Your brochure has been saved. You're now connected with Mayberry Homes, and we've emailed you a copy for your convenience.
The brochure will download automatically when ready.
Way to Go!
You’re connected with Mayberry Homes.
The best way to find out more is to visit the community yourself!