The Hunter Plan
Ready to build
6838 Betsy Lane, Hixson TN 37343
Home by Greentech Homes LLC

The Price Range displayed reflects the base price of the homes built in this community.
You get to select from the many different types of homes built by this Builder and personalize your New Home with options and upgrades.
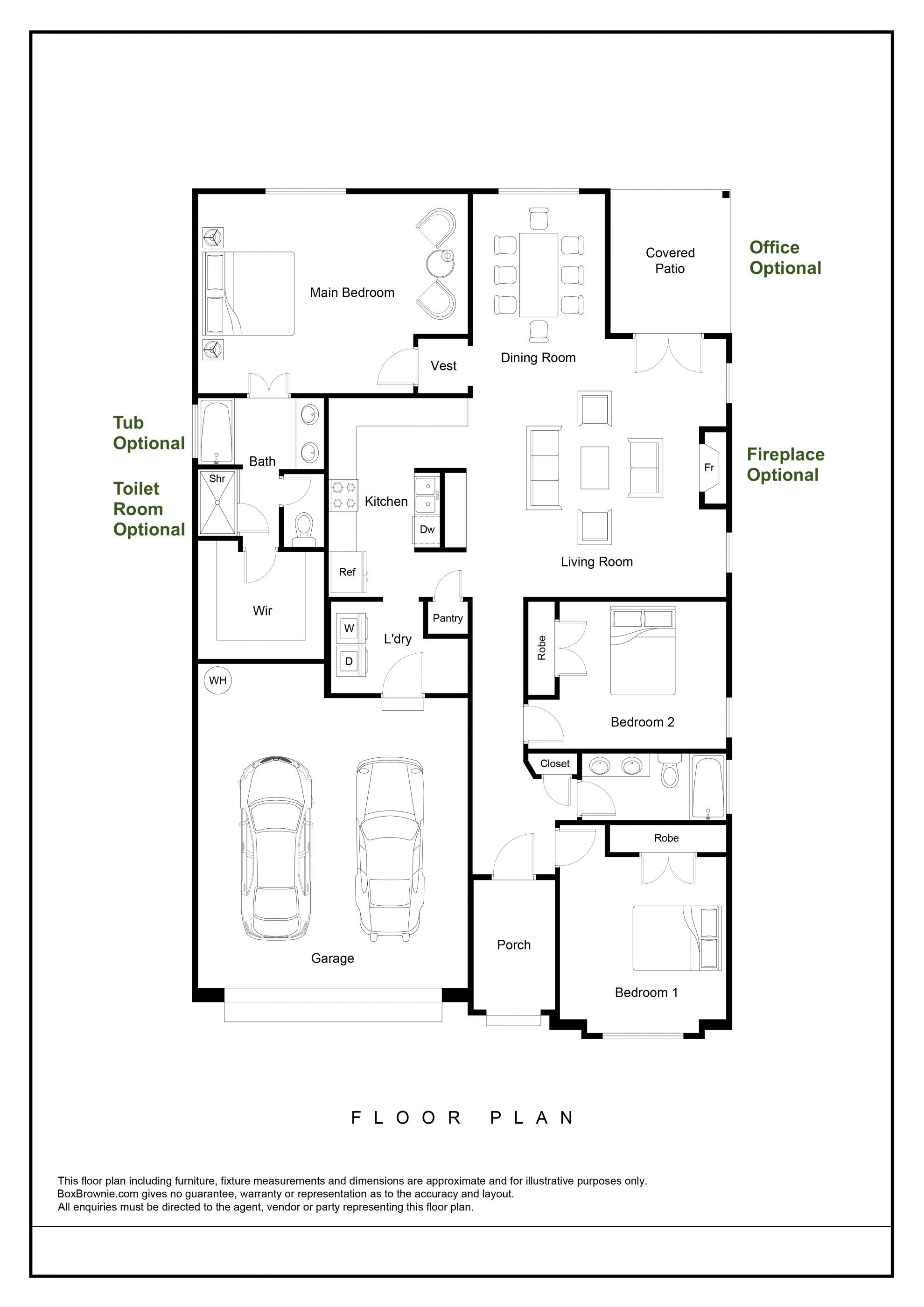
3 BR
2 BA
2 GR
1,900 SQ FT

The Hunter 1/16
Overview
1 Story
1900 Sq Ft
2 Bathrooms
2 Car Garage
3 Bedrooms
Covered Patio
Dining Room
Fireplaces
Living Room
Porch
Single Family
The Hunter Plan Info
The Hunter’s twin peak roofline and inset entry lend this one-level home a bright and stately curb appeal. The crossed-T configuration of the kitchen, living and dining room creates a moment of drama as you transition from the entryway to the openness of the main living areas. The floor plan incorporates other successful trends of modern plan design: a split-bedroom layout, a large kitchen preparation island, and a dining room framed by French doors opening onto a patio.
Floor plan center
View floor plan details for this property.
- Floor Plans
- Exterior Images
- Interior Images
- Other Media
Neighborhood
Community location & sales center
6838 Betsy Lane
Hixson, TN 37343
6838 Betsy Lane
Hixson, TN 37343
888-573-9283
From Downtown Chattanooga: Take US-27 N., Exit to TN-153 S/Dayton Blvd/Dayton Pike. Take TN-153 S Exit. Follow TN-153 S and turn left on Boy Scout Rd. Turn right on Middle Valley Rd. Turn left on E Boy Scout Rd. Turn left onto Hixson Pike. Neighborhood will be on your left.
Nearby schools
Hamilton County Schools
Elementary school. Grades KG to 5.
- Public school
- Teacher - student ratio: 1:15
- Students enrolled: 782
1609 Thrasher Pike, Hixson, TN, 37343
423-843-4700
Middle school. Grades 6 to 8.
- Public school
- Teacher - student ratio: 1:14
- Students enrolled: 607
5681 Old Hixson Pike, Hixson, TN, 37343
423-847-4810
High school. Grades 9 to 12.
- Public school
- Teacher - student ratio: 1:14
- Students enrolled: 935
5705 Middle Valley Rd, Hixson, TN, 37343
423-847-4800
Actual schools may vary. We recommend verifying with the local school district, the school assignment and enrollment process.
Amenities
Home details
Ready to build
Build the home of your dreams with the The Hunter plan by selecting your favorite options. For the best selection, pick your lot in The Farmstead today!
Community & neighborhood
Local points of interest
- Food truck hook-ups for neighborhood gathering
- Dog park
- Acres of centralized green spaces for relaxation and activities
- Lamp-lit sidewalks
- Community plaza for music and events
- Multiple fire pit zones for family and community engagements
Utilities
- Electric Electric Power Board (EPB)
- Telephone Comcast (800) 934-6489
- Telephone Electric Power Board (EPB)
Health and fitness
- Centralized clubhouse with kitchen and exercise amenities
Community services & perks
- HOA fees: Unknown, please contact the builder
- Park
Neighborhood amenities
Save-A-Lot
1.17 miles away
6925 Middle Valley Rd
Walmart Neighborhood Market
1.54 miles away
7636 Middle Valley Rd
Publix
1.67 miles away
5928 Hixson Pike
Food City
2.33 miles away
5604 Hixson Pike
Food City
2.81 miles away
8530 Hixson Pike
Walmart Bakery
1.54 miles away
7636 Middle Valley Rd
Bond Girl Bakery
2.72 miles away
8505 Hixson Pike
Einstein Bros Bagels
3.19 miles away
5237 Hixson Pike
Walmart Bakery
3.36 miles away
5764 Highway 153
Chatta-Cakes bakery
3.43 miles away
5143 Hixson Pike
Nana's Frozen Custard
0.23 mile away
6707 Hixson Pike
Armandos @ Chester Frost
0.73 mile away
7330 Hixson Pike
Choo Choo Barbeque
0.82 mile away
6410 Hixson Pike
Pizza Hut
1.08 miles away
6218 Hixson Pike
Wing Street
1.08 miles away
6218 Hixson Pike
Starbucks
2.33 miles away
5604 Hixson Pike
Starbucks
3.81 miles away
5513 Highway 153
Starbucks
3.88 miles away
5579 Highway 153
7 Brew Coffee
3.88 miles away
5417 Highway 153
Dutch Bros Coffee
3.99 miles away
5102 Hixson Pike
Freckled Frogs Shop LLC
2.77 miles away
8513 Hixson Pike
Labella Jewels Boutique
2.77 miles away
8513 Hixson Pike
Elliotts Boots
2.89 miles away
5414 Hixson Pike
Elliott's Boots, Shoes & Sandals
2.89 miles away
5414 Hixson Pike
Walmart Supercenter
3.36 miles away
5764 Highway 153
Old Folks Lounge
2.99 miles away
5401 Wilbanks Dr
Buffalo Wild Wings
3.48 miles away
5744 Highway 153
LongHorn Steakhouse
3.75 miles away
5583 Highway 153
Chili's
3.78 miles away
123 Northgate Mall Dr
Old Chicago Pizza + Taproom
3.84 miles away
250 Northgate Mall Dr
Please note this information may vary. If you come across anything inaccurate, please contact us.
GreenTech began as a vision in the starry eyes of a 16-year old construction grunt. Perched atop a ladder, dumpster at my feet, he saw a fascinating industry. It had the ability to impact the very fabric of how we live… but it was also mired in suburban sprawl, sub-par quality, and at war with the very environment we were designed to enjoy. He knew we could do better; and for the sake of our well-being and future, he knew we had to do better. Thus, GreenTech Homes was born. Today we craft Chattanooga communities that embody our ideals. We believe you should see more bikes than cars in your neighborhood. You shouldn’t have to worry about hazardous chemicals in your cabinetry. The air you breathe should be clean and pure. Energy conservation should mean a lot more than just flipping a switch.
Take the next steps toward your new home
The Hunter Plan by Greentech Homes LLC
saved to favorites!
To see all the homes you’ve saved, visit the My Favorites section of your account.
Discover More Great Communities
Select additional listings for more information
We're preparing your brochure
You're now connected with Greentech Homes LLC. We'll send you more info soon.
The brochure will download automatically when ready.
Brochure downloaded successfully
Your brochure has been saved. You're now connected with Greentech Homes LLC, and we've emailed you a copy for your convenience.
The brochure will download automatically when ready.
Way to Go!
You’re connected with Greentech Homes LLC.
The best way to find out more is to visit the community yourself!