The Lexington Plan
Ready to build
4007 Emilia Way, Blacksburg VA 24060
Home by Stateson Homes

The Price Range displayed reflects the base price of the homes built in this community.
You get to select from the many different types of homes built by this Builder and personalize your New Home with options and upgrades.
4 BR
2.5 BA
2 GR
2,390 SQ FT

The Lexington 1/16
Overview
1 Half Bathroom
2 Bathrooms
2 Car Garage
2 Stories
2390 Sq Ft
4 Bedrooms
Breakfast Area
Dining Room
Family Room
Guest Room
Living Room
Mud Room
Primary Bed Upstairs
Single Family
Study
Walk-In Closets
The Lexington Plan Info
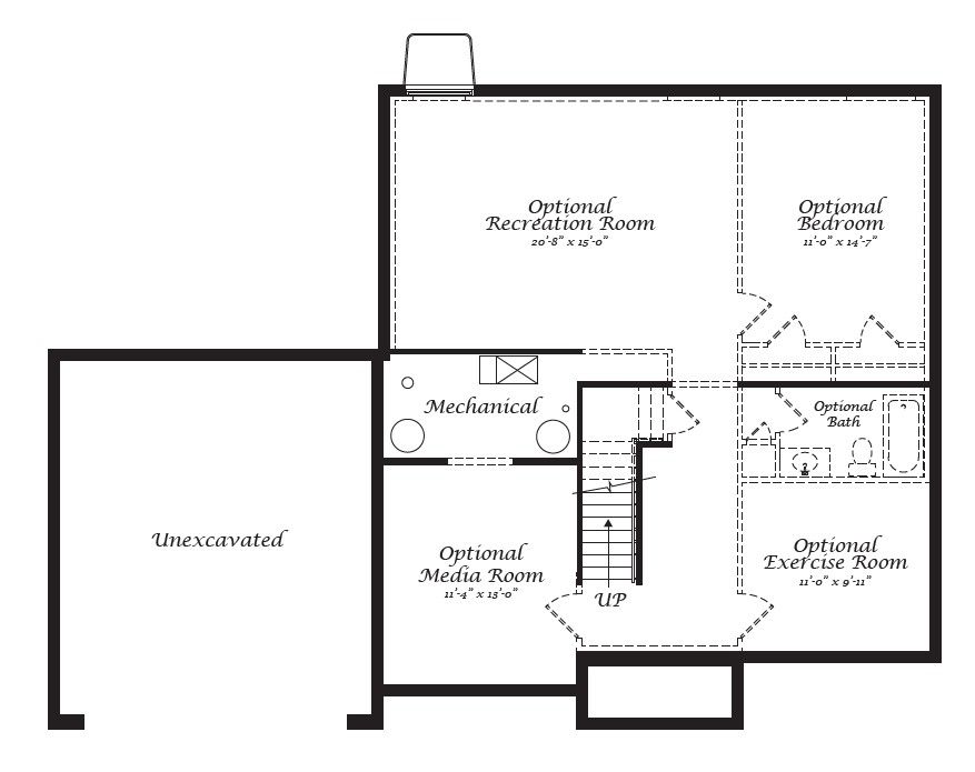
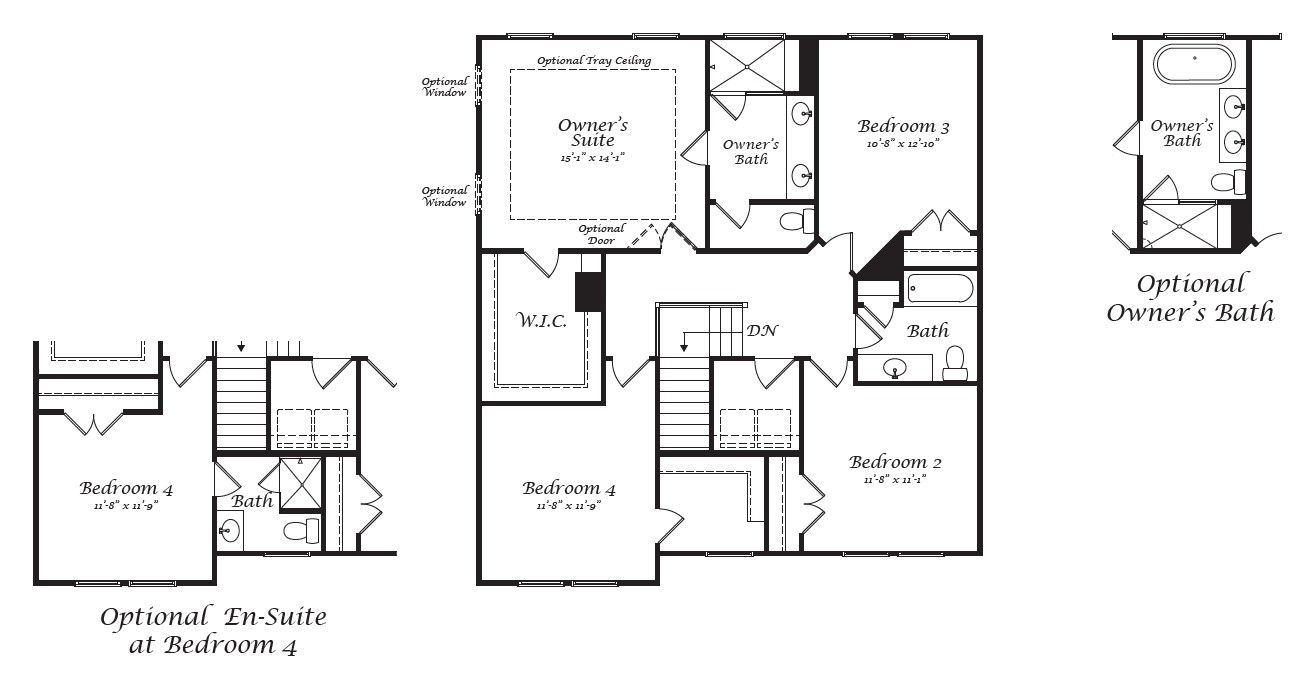
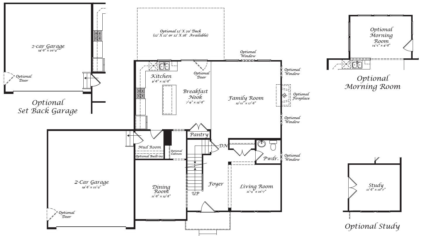
30-Year fixed interest rate offered on this home as low as 4.875%* plus $20,000 towards options or closing costs! Contact us for details. Stepping into the spacious foyer of this well-appointed colonial design gives a nostalgic feel of old charm meets new vision. This home gives you every modern convenience of main level living including a family room and a formal living room, with the choice of traditional favorites like a morning room and study. With three bedrooms and a full bath upstairs, there is still room for an optional master’s ensuite and fourth bedroom with ensuite. This home is ready to accommodate families of all sizes, offering an additional lower floor with a recreation room, media room, bedroom, full bath, and flex space. Located in the desirable Westhill community, you’ll have full access to your very own pool and clubhouse for recreation, leisure-oriented, walkable neighborhoods, maintenance-free living with included lawn care, and creative pathways to and from Prices Fork Elementary School. From first-time homebuyers to growing families and professionals, this model provides thoughtful options to make your home, your own. Come fall in love with The Lexington, by Stateson Homes.
Floor plan center
View floor plan details for this property.
- Floor Plans
- Exterior Images
- Interior Images
- Other Media
Explore custom options for this floor plan.
- Choose Option
- Include Features
Neighborhood
Community location & sales center
4007 Emilia Way
Blacksburg, VA 24060
4007 Emilia Way
Blacksburg, VA 24060
From Downtown Blacksburg, head NW on S Main St. At traffic circle, take second exit onto Prices Ford Rd. Travel 4 miles and community will be on your left.
Nearby schools
Montgomery County Public Schools
Middle school. Grades 6 to 8.
- Public school
- Teacher - student ratio: 1:12
- Students enrolled: 946
3109 Prices Fork Rd, Blacksburg, VA, 24060
540-951-5800
High school. Grades 9 to 12.
- Public school
- Teacher - student ratio: 1:15
- Students enrolled: 1321
3401 Bruin Ln, Blacksburg, VA, 24060
540-951-5706
Actual schools may vary. We recommend verifying with the local school district, the school assignment and enrollment process.
Amenities
Home details
Ready to build
Build the home of your dreams with the The Lexington plan by selecting your favorite options. For the best selection, pick your lot in Westhill Single Family Homes today!
Community & neighborhood
Local points of interest
- Mountain views
- Moments to downtown Blacksburg
- Views
Social activities
- Club House
Health and fitness
- Pool
- Trails
Community services & perks
- HOA Fees: $242/month
- Options for main level living
Neighborhood amenities
Food Lion
1.42 miles away
801 Hethwood Blvd
Hethwood Market
1.90 miles away
820 Heather Dr
Kroger
3.00 miles away
903 University City Blvd
Little Market
3.87 miles away
895 Peppers Fry Rd NW
Kroger
4.25 miles away
1322 S Main St
sweetFrog
2.96 miles away
801 University City Blvd
Kroger Bakery
3.00 miles away
903 University City Blvd
Eats Natural Foods Co-op
3.70 miles away
708 N Main St
GNC
4.17 miles away
782 New River Rd
Annie Kay's Main St. Market
4.39 miles away
1531 S Main St
Thyme & Table
0.71 mile away
4237 Prices Fork Rd
Grumpy Pig Barbeque
0.71 mile away
3500 Prices Fork Rd
Hunt Brothers Pizza
0.90 mile away
4351 Prices Fork Rd
On-Site Culinary Solutions LLC
1.27 miles away
2090 Brooksfield Rd
Hethwood Market
1.90 miles away
820 Heather Dr
Himalayan Curry Cafe
2.98 miles away
781 University City Blvd
Tropical Smoothie Cafe
3.03 miles away
896 Prices Fork Rd
Starbucks
3.09 miles away
880 University City Blvd
Jamba
3.44 miles away
430 Old Turner St
Dunkin'
3.52 miles away
150 Kent St
Bonomo's Inc
3.09 miles away
860 University City Blvd
Best of NRV Bridals & Events
3.60 miles away
210 Prices Fork Rd
310 Rosemont
3.82 miles away
208 N Main St
Fringe Benefit
3.82 miles away
105 N Main St
Underground Printing Blacksburg
3.85 miles away
220 S Main St
Macado's
3.09 miles away
922 University City Blvd
Buffalo Wild Wings
3.51 miles away
460 Turner St NW
Blacksburg Wine Lab
3.57 miles away
223 Gilbert St
The Milk Parlor
3.73 miles away
211 Draper Rd NW
Pk's Bar & Grill
3.79 miles away
432 N Main St
Please note this information may vary. If you come across anything inaccurate, please contact us.
At Stateson Homes, we are taking NEW to a whole other level. After ten years of turning dreams into homes, we are ready to kick off ten more years in a big way. 2022 is welcoming not one, but two new communities to our roster. Westhill, a brand-new community that has been reshaped and reimagined into something Blacksburg has never seen before. And Hills Quarter in Irvington, VA where signature Stateson style is coming home to a laid-back river life in Virginia’s Northern Neck. Get ready for what’s next.
Take the next steps toward your new home
The Lexington Plan by Stateson Homes
saved to favorites!
To see all the homes you’ve saved, visit the My Favorites section of your account.
Discover More Great Communities
Select additional listings for more information
We're preparing your brochure
You're now connected with Stateson Homes. We'll send you more info soon.
The brochure will download automatically when ready.
Brochure downloaded successfully
Your brochure has been saved. You're now connected with Stateson Homes, and we've emailed you a copy for your convenience.
The brochure will download automatically when ready.
Way to Go!
You’re connected with Stateson Homes.
The best way to find out more is to visit the community yourself!