The Stella Plan
Ready to build
1361 Barret Park Way, Montgomery AL 36117
Home by New Park - Jim Wilson & Assoc.

Last updated 01/30/2026
The Price Range displayed reflects the base price of the homes built in this community.
You get to select from the many different types of homes built by this Builder and personalize your New Home with options and upgrades.
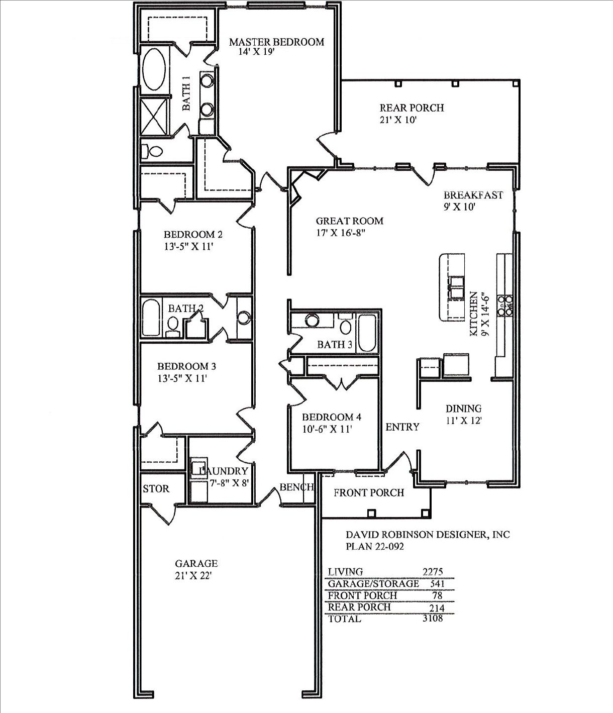
4 BR
3 BA
2 GR
2,275 SQ FT

The Stella 1/2
Overview
1 Story
Breakfast Area
Covered Patio
Dining Room
Family Room
Fireplaces
Porch
Single Family
Walk-In Closets
The Stella Plan Info
The Stella is a beautiful custom home built by Hugh Cole Builder, Inc. that is now under construction. With an open floor plan and a large covered back porch, this home is perfect for entertaining. The kitchen features a large island and granite countertops! The dining, kitchen, breakfast area, great room and master bedroom will have LVP flooring while the additional three bedrooms will have carpet and tile in the laundry and bathrooms. There is a nice drop zone area as you enter from the garage where you can leave your shoes/backpacks/sports equipment/etc. and the laundry is conveniently located directly across the hall. The master bedroom is on the back of the house and features two walk-in closets with a separate garden tub and shower. Call us today to get more information about making the home yours! There is still time to make some selections on this home and customize to your design preferences!
Floor plan center
View floor plan details for this property.
- Floor Plans
- Exterior Images
- Interior Images
- Other Media
Neighborhood
Community location & sales center
1361 Barret Park Way
Montgomery, AL 36117
1361 Barret Park Way
Montgomery, AL 36117
888-648-8754
Off Park Crossing, between Ray Thorington Road and Taylor Road, life at New Park puts you near the best new shopping and entertainment the city has to offer. And I-85 is only minutes away, offering easy access to downtown and other locations within the area. New Park is easy to get to, and hard to leave. From I-85, take Taylor Road to Vaughn Road. Proceed one mile to Ray Thorington Road. The entrance to New Park is two miles ahead on the right at New Park Drive.
Nearby schools
Montgomery County Schools
Wilson Elementary School
Elementary school. Grades PK to 5.
Public school
Teacher - student ratio: 1:16
Students enrolled: 388
334-272-8819
8900 Park Xing, Montgomery, AL, 36117
Johnnie R Carr Junior High School
Middle school. Grades 6 to 8.
Public school
Teacher - student ratio: 1:15
Students enrolled: 849
334-244-4005
1610 Ray Thorington Rd, Montgomery, AL, 36117
Park Crossing High School
High school. Grades 9 to 12.
Public school
Teacher - student ratio: 1:20
Students enrolled: 906
334-260-8121
8000 Park Xing, Montgomery, AL, 36117
GreatSchools ratings are provided by GreatSchools.org and are for reference only. Ratings may not be available for all schools. Please verify school assignments and details with the local school district.
Amenities
Home details
Ready to build
Build the home of your dreams with the The Stella plan by selecting your favorite options. For the best selection, pick your lot in New Park – A New Home Community today!
Community & neighborhood
Local points of interest
- Conveniently located near numerous restaurants, attractions and shopping centers.
- Lake
- WaterFront Lots
Utilities
- Electric Alabama Power (800) 245-2244
- Gas Spire Energy (800) 292-4008
- Telephone AT&T (866) 278-6142
- Telephone Spectrum (888) 438-2427
- Telephone WOW (334) 491-7500
- Water Montgomery Water Works (334) 206-1600
Social activities
- Club House
Health and fitness
- YMCA facility just a short stroll from your front door.
- Pool
Community services & perks
- Playground
Neighborhood amenities
Winn-Dixie
2.81 miles away
7946 Vaughn Rd
Walmart Neighborhood Market
2.88 miles away
8035 Vaughn Rd
Publix
2.97 miles away
7700 Vaughn Rd
Walmart Supercenter
3.39 miles away
10710 Chantilly Pkwy
Renfroe's Foodland
3.74 miles away
9168 Eastchase Pkwy
Gigi's Cupcakes
2.81 miles away
7918 Vaughn Rd
GNC
2.81 miles away
7966 Vaughn Rd
Walmart Bakery
2.88 miles away
8035 Vaughn Rd
Walmart Bakery
3.39 miles away
10710 Chantilly Pkwy
Incredible Edibles
3.51 miles away
11123 Chantilly Pkwy Ct
Tipping Point
2.38 miles away
5015 Hampstead High St
City Grill
2.46 miles away
5251 Hampstead High St
Taste
2.46 miles away
5251 Hampstead High St
Fyffe Shots
2.63 miles away
2248 Halcyon Blvd
Chevron
2.65 miles away
6517 Troy Hwy
Tropical Smoothie Cafe
2.84 miles away
7248 Halcyon Park Dr
Dunkin'
2.85 miles away
8025 Vaughn Rd
Starbucks
3.04 miles away
7790 Vaughn Rd
New Wave
3.51 miles away
11123 Chantilly Pkwy Ct
Starbucks
3.80 miles away
6911 Eastchase Loop
Arsenal
2.39 miles away
5151 Hampstead High St
Pamala's Boutique LLC
2.69 miles away
8749 Old Marsh Way
Bella
2.81 miles away
8129 Vaughn Rd
Rooster & the Rose
2.81 miles away
8113 Vaughn Rd
KJS Boutique
2.97 miles away
7806 Vaughn Rd
City Grill
2.46 miles away
5251 Hampstead High St
Applebee's Grill + Bar
2.81 miles away
3195 Taylor Rd
Ric & Moes LLC
3.57 miles away
3150 Watchman Dr
Firebirds Wood Fired Grill
3.81 miles away
7078 Eastchase Pkwy
Walk-On's Sports Bistreaux
3.81 miles away
7801 Eastchase Pkwy
Please note this information may vary. If you come across anything inaccurate, please contact us.
Based in Montgomery, Alabama, the company has developed and managed a wide array of properties throughout the eastern United States. As the region’s premier developer of retail centers, JWA has put its unique stamp on more than 22 million square feet of shopping center space. The company has also developed trend-setting master planned neighborhoods in the Montgomery, Alabama area. With hotels, offices, condominiums and other developments, JWA continues to use its experience from past successes to drive the company into the future.
Take the next steps toward your new home
The Stella Plan by New Park - Jim Wilson & Assoc.
saved to favorites!
To see all the homes you’ve saved, visit the My Favorites section of your account.
Discover More Great Communities
Select additional listings for more information
We're preparing your brochure
You're now connected with New Park - Jim Wilson & Assoc.. We'll send you more info soon.
The brochure will download automatically when ready.
Brochure downloaded successfully
Your brochure has been saved. You're now connected with New Park - Jim Wilson & Assoc., and we've emailed you a copy for your convenience.
The brochure will download automatically when ready.
Way to Go!
You’re connected with New Park - Jim Wilson & Assoc..
The best way to find out more is to visit the community yourself!