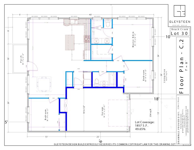
Beach Creek
Wagner
1125 Wheeldon Way, Ashland, OR, 97520
by KDA Homes
From $699,000 This is the starting price for this plan and is subject to change.
Monthly HOA fees: $79
- 3 Beds
- 2 Baths
- 1 Car garage
- 1,236 Sq Ft
Overview
Floor plan features
- 1 Story
- Single Family
Floor plan description
Discover Your Dream Home at Lot 30 in Beach Creek Community in Ashland! Welcome to the Wagner Puke plan, a stunning three-bedroom, two-bath home that combines modern living with breathtaking natural beauty. Spanning approximately 1,232 square feet, this thoughtfully designed residence features an abundance of windows that frame spectacular views of Grizzly Peak, inviting the beauty of the outdoors into your everyday life. Nestled in the highly sought-after Beach Creek community in Ashland, Oregon, this home is a true gem. Known for its commitment to sustainability, Beach Creek showcases net-zero solar homes and has achieved Earth Advantage Platinum certification. With fire-wise construction and a focus on lifelong housing, you can enjoy peace of mind while living in a home that respects ...
Explore this home
Explore custom options for this floor plan.
Community highlights
Community amenities
Conservation Area
Event Lawn
Garden
Greenbelt
Hammock Park
Mountain Views
Outdoor Recreation
Park
Picnic Area
Play Lawn
Trails
Views
About Beach Creek
Welcome to Beach Creek, a Net-Zero solar-powered community featured in the Solar Oregon Go Zero Tour 2024, where small-town charm meets cutting-edge sustainable living. Nestled in the heart of Ashland, Oregon, Beach Creek is more than just a neighborhood—it’s a celebration of community, nature, and a connected way of life. Imagine living in a place community where you can walk to everything: local restaurants, downtown, growers market, live music, plays and a thriving sense of togetherness. Beach Creek blends the best of traditional Oregonian values with the latest in eco-conscious technology, offering homes that are as sustainable as they are beautiful. Each Earth Advantage Platinum-certified, Net Zero home features solar panels, fire-wise construction, and more energy-efficient lifesty...
Green program
Earth Advantage
Neighborhood

Community location & sales center
1125 Wheeldon Way Ashland, OR 97520
1125 Wheeldon Way Ashland, OR 97520
888-899-3203
Nearby schools
Ashland School District 5
Helman Elementary School
Elementary school. Grades KG to 5.
Public school
Teacher - student ratio: 1:14
Students enrolled: 311
541-482-5620
705 Helman St, Ashland, OR, 97520
Walker Elementary School
Elementary school. Grades KG to 5.
Public school
Teacher - student ratio: 1:13
Students enrolled: 221
541-482-1516
364 Walker Ave, Ashland, OR, 97520
Ashland Middle School
Middle school. Grades 6 to 8.
Public school
Teacher - student ratio: 1:16
Students enrolled: 530
541-482-8577
100 Walker Ave, Ashland, OR, 97520
Ashland High School
High school. Grades 9 to 12.
Public school
Teacher - student ratio: 1:19
Students enrolled: 924
541-482-8771
201 S Mountain Ave, Ashland, OR, 97520
GreatSchools ratings are provided by GreatSchools.org and are for reference only. Ratings may not be available for all schools. Please verify school assignments and details with the local school district.
Amenities
Community & neighborhood
Local points of interest
- Oregon Shakespeare Festival
- Oregon Cabaret
- Farm Table Restaurants
- North Mountain Park
- Garfield Park
- Railroad Park
- Lithia Park
- Greenbelt
- Views
- ConservationArea
- MountainViews
- OutdoorRecreation
- WoodedAreas
Social activities
- EventLawn
- PicnicArea
Health and fitness
- Trails
Community services & perks
- Park
- Garden
- HammockPark
- PlayLawn
Neighborhood amenities
Safeway
0.45 mile away
585 Siskiyou Blvd
Ashland Food Co-op
0.68 mile away
237 N 1st St
Market of Choice
0.96 mile away
1475 Siskiyou Blvd
K H Enterprises Incorporated
1.22 miles away
1690 Siskiyou Blvd
Sessions Market 2
1.23 miles away
1908 Ashland St
Artisan Bakers LLC
0.64 mile away
372 E Main St
Einstein Bros Bagels
0.79 mile away
1250 Siskiyou Blvd
All's Well Herb & Vitamin
0.83 mile away
107 Oak St
Sidekick 1021 LLC
1.49 miles away
2210 Ashland St
Albertsons Bakery
1.58 miles away
2301 Ashland St
Missyoon
0.43 mile away
542 A St
Peerless Restaurant
0.47 mile away
265 4th St
ABC Kitchen
0.49 mile away
300 E Hersey St
Cucina Biazzi
0.50 mile away
568 E Main St
Four & Twenty Blackbirds Bakery
0.55 mile away
240 E Hersey St
Ashland Coffee Co LLC
0.28 mile away
917 E Main St
Starbucks
0.45 mile away
585 Siskiyou Blvd
Pony Espresso-Ashland
0.71 mile away
175 Lithia Way
Starbucks
0.94 mile away
512 Walker Ave
Dutch Bros Coffee
1.06 miles away
1644 Ashland St
Urban Sketchers of Southern Oregon
0.47 mile away
281 4th St
Outbank in the Temple of Venus
0.67 mile away
275 E Main St
Kixx
0.70 mile away
264 E Main St
Massif Mountain Gear Co LLC
0.71 mile away
498 Oak St
Lithia Park Shoes
0.71 mile away
232 E Main St
Beau Club
0.63 mile away
347 E Main St
Simple Cafe
0.64 mile away
249 A St
Redzone Sports Bar N Grill
0.66 mile away
303 E Main St
O'Ryans Irish Pub
0.76 mile away
137 E Main St
Macaroni's Ristorante
0.82 mile away
58 E Main St
Please note this information may vary. If you come across anything inaccurate, please contact us.
Builder details
KDA Homes

KDA Homes strives to be a positive impact of delivering a green home. A green home not only reduces the environmental footprint but also provides a healthier and more sustainable living space for residents. By incorporating energy-efficient features, such as solar panels and high-efficiency appliances, green homes help to lower energy costs for homeowners while promoting renewable energy use. Additionally, the use of eco-friendly materials and construction practices contributes to a healthier indoor environment by minimizing exposure to harmful chemicals. Overall, delivering a green home not only benefits the environment but also enhances the quality of life for those who are lucky enough to call it home. KDA proudly leads the way in the housing industry and is recognized as one of Ashland's top custom green community developers, having completed multiple successful Net Zero Communities in Ashland, Oregon.
KDA Gives You The Better Way To Build Your Custom Home. Our Home Packages Include Spec or Custom Concept Designs, Construction Drawings And All Of The Structural And Exterior Finishing Materials Required To Build Your Home. We Believe In Working Together To Create A Beautiful Custom Home, Designed Just For You. KDA Homes Makes Designing And Building your dream home Easy, and Streamlined Process.
Take the next steps toward your new home
This listing's information was verified with the builder for accuracy 04/06/2026
Wagner Plan by KDA Homes
saved to favorites!
To see all the homes you’ve saved, visit the My Favorites section of your account.
Discover More Great Communities
Select additional listings for more information
We're preparing your brochure
You're now connected with KDA Homes. We'll send you more info soon.
The brochure will download automatically when ready.
Brochure downloaded successfully
Your brochure has been saved. You're now connected with KDA Homes, and we've emailed you a copy for your convenience.
The brochure will download automatically when ready.
Way to Go!
You’re connected with KDA Homes.
The best way to find out more is to visit the community yourself!